© Capretti-ad

CAD

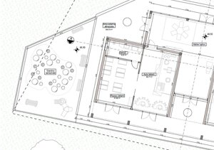
Programma 
Realizzazione Nido d'infanzia nel quartiere di S. Andrea
Committente
Comune di Fermo
Progetto ed esecuzione
Arch. Ivano Capretti, Arch. Enrico Cucchiaroni, Ing. Mirko Maoloni, Ing. Mauro Bracciani
Realizzazione
Impresa edile Gaspari Gabriele Srl
Superficie
750.00 Mq